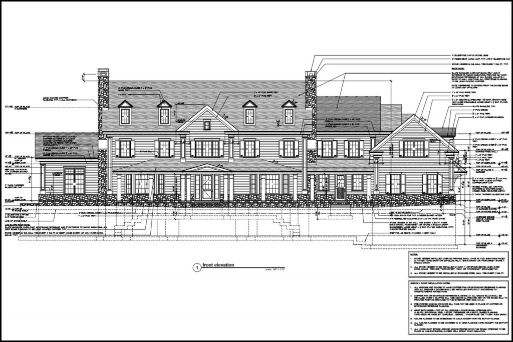
detailed home construction drawings by demotte architects ct & ny architect

detailed home construction drawings by demotte architects ct & ny architect

Leave a reply